Description
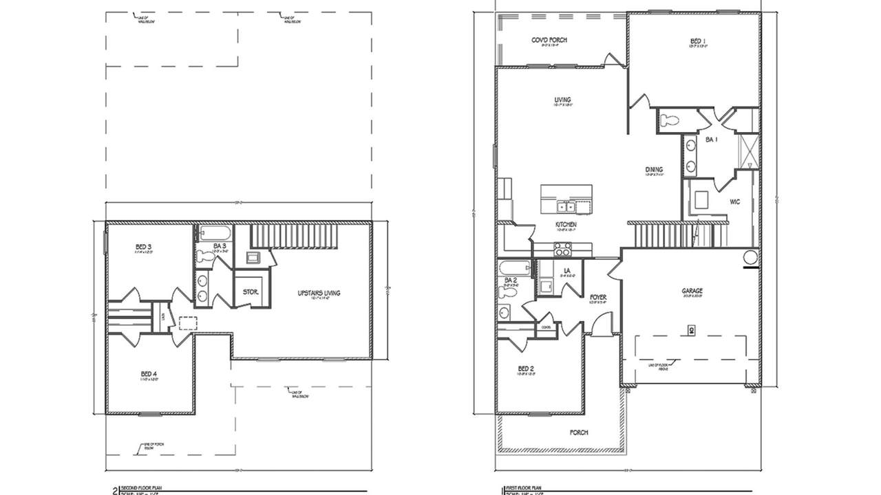
Welcome to 60 Foxtrail Run at Ashton Park Phase III in Freeport Florida. This pre-construction homesite offers the opportunity to secure new construction prior to groundbreaking. This property will be developed with the Ozark floorplan and built to current design standards and specifications. Buyers may have the ability to personalize select finishes depending on the stage of construction. Estimated completion timelines and build details available upon request. This home has just over 2,500 square feet through two stories, with 4 bedrooms with 3 bathrooms, a 2-car garage, and a seamless open layout. There is a covered front porch and entry door.
-
4BEDS
-
N/AACRES
-
3BATHS
-
01/2 BATHS
-
2,415SQFT
-
$187$/SQFT
School Information
Description
Welcome to 60 Foxtrail Run at Ashton Park Phase III in Freeport Florida. This pre-construction homesite offers the opportunity to secure new construction prior to groundbreaking. This property will be developed with the Ozark floorplan and built to current design standards and specifications. Buyers may have the ability to personalize select finishes depending on the stage of construction. Estimated completion timelines and build details available upon request. This home has just over 2,500 square feet through two stories, with 4 bedrooms with 3 bathrooms, a 2-car garage, and a seamless open layout. There is a covered front porch and entry door.
© 2026 Emerald Coast Association of Realtors MLS. All rights reserved. IDX information is provided exclusively for consumers' personal, non-commercial use and may not be used for any purpose other than to identify prospective properties consumers may be interested in purchasing. Information is deemed reliable but is not guaranteed accurate by the MLS or Hammock Bay. Vendor Member number: 28178. Data last updated: 2026-03-05T00:00:32.15.
Vendor Member #28178.
