Description
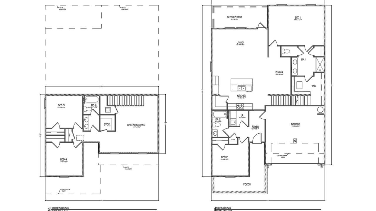
Welcome to 34 Foxtrail Run at Ashton Park Phase III in Freeport Florida. This pre-construction homesite offers the opportunity to secure new construction prior to groundbreaking. This property will be developed with the Ozark floorplan and built to current design standards and specifications. Buyers may have the ability to personalize select finishes depending on the stage of construction. Estimated completion timelines and build details available upon request. This home has just over 2,500 square feet through two stories, with 4 bedrooms with 3 bathrooms, a 2-car garage, and a seamless open layout. There is a covered front porch and entry door. As you enter the home, you are met with the foyer leading to the open concept living area. Just off the entry hall, you will find a guest bedroom featuring a full bathroom and the laundry room. Continuing through the foyer you enter the open concept living area including the kitchen, living room and dining space. The kitchen includes quartz countertops, under mount sink, smooth top range, stainless steel appliances, pantry, stylish shaker cabinetry, and a center island. With natural light and nearby covered patio access, the living and dining area are integrated perfectly. At the back of the main living area is the primary bedroom. This bedroom is a spacious and relaxing room that includes an ensuite bathroom. The primary bathroom has a dual sink vanity, a separate water closet, shower and walk-in closet. Returning to the foyer you will find stairs leading to the second floor. On the second level, there is an additional living area that could be used as a media room or study. There are two guest bedrooms on the second level as well as a full bathroom dual sink vanity and shower tub combination. For more information on this home, contact a D.R. Horton sales representative. Images are of model home and may include custom design features not available in other homes. [Furnishings and decorative items are not included with home purchase.]
-
4BEDS
-
N/AACRES
-
3BATHS
-
01/2 BATHS
-
2,415SQFT
-
$187$/SQFT
School Information
Description
Welcome to 34 Foxtrail Run at Ashton Park Phase III in Freeport Florida. This pre-construction homesite offers the opportunity to secure new construction prior to groundbreaking. This property will be developed with the Ozark floorplan and built to current design standards and specifications. Buyers may have the ability to personalize select finishes depending on the stage of construction. Estimated completion timelines and build details available upon request. This home has just over 2,500 square feet through two stories, with 4 bedrooms with 3 bathrooms, a 2-car garage, and a seamless open layout. There is a covered front porch and entry door. As you enter the home, you are met with the foyer leading to the open concept living area. Just off the entry hall, you will find a guest bedroom featuring a full bathroom and the laundry room. Continuing through the foyer you enter the open concept living area including the kitchen, living room and dining space. The kitchen includes quartz countertops, under mount sink, smooth top range, stainless steel appliances, pantry, stylish shaker cabinetry, and a center island. With natural light and nearby covered patio access, the living and dining area are integrated perfectly. At the back of the main living area is the primary bedroom. This bedroom is a spacious and relaxing room that includes an ensuite bathroom. The primary bathroom has a dual sink vanity, a separate water closet, shower and walk-in closet. Returning to the foyer you will find stairs leading to the second floor. On the second level, there is an additional living area that could be used as a media room or study. There are two guest bedrooms on the second level as well as a full bathroom dual sink vanity and shower tub combination. For more information on this home, contact a D.R. Horton sales representative. Images are of model home and may include custom design features not available in other homes. [Furnishings and decorative items are not included with home purchase.]
© 2026 Emerald Coast Association of Realtors MLS. All rights reserved. IDX information is provided exclusively for consumers' personal, non-commercial use and may not be used for any purpose other than to identify prospective properties consumers may be interested in purchasing. Information is deemed reliable but is not guaranteed accurate by the MLS or Hammock Bay. Vendor Member number: 28178. Data last updated: 2026-03-05T00:00:32.15.
Vendor Member #28178.
