Description
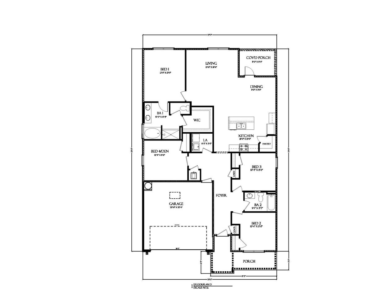
Welcome to the Cali, a new home floor plan at Riverwalk inn Freeport, Florida. As you step through the entry door, you're greeted by a spacious, light-filled foyer that effortlessly flows into the heart of this inviting 4-bedroom, 2-bathroom home. To your left, you'll find two generously sized bedrooms, each with its own large closet, separated by a shared full bathroom featuring elegant fixtures and durable vinyl plank flooring. The home's centerpiece is the open-concept living space, where the kitchen, dining area, and living room merge seamlessly under 8-foot ceilings. The kitchen is complete with a center island, that has space for bar seating and beautiful surrounding cabinetry for storage. Adjacent to the kitchen is the dining space, with plenty of room for a family table, and the living area offers cozy charm with views of the backyard. The primary bedroom is tucked away at the rear for privacy and feels like a true retreat. It features a spacious bedroom, a walk-in closet, and a luxurious ensuite bath with a dual-sink vanity, shower, full size soaking tub and separate water closet. There are three additional bedrooms with one that could serve as a home office or study. Step outside to the covered patio which invites you to relax and enjoy the scenic surroundings. The Cali floorplan delivers comfort and style for modern living. Riverwalk is the perfect place to call home with its onsite amenities featuring a pool and clubhouse and a boardwalk that leads to Lafayette Creek and LaGrange Bayou. This home was the model home. Any furniture or draperies in the home do not convey. This home is sold AS/IS and the warranties on appliances will be for the time remaining of the item. There is a one year builder warranty that will start from the date of closing. Any window treatment hardware shall remain. All sales center areas will be converted back to the space as shown on the floor plan.
-
4BEDS
-
N/AACRES
-
2BATHS
-
01/2 BATHS
-
1,799SQFT
-
$0$/SQFT
School Information
Description
Welcome to the Cali, a new home floor plan at Riverwalk inn Freeport, Florida. As you step through the entry door, you're greeted by a spacious, light-filled foyer that effortlessly flows into the heart of this inviting 4-bedroom, 2-bathroom home. To your left, you'll find two generously sized bedrooms, each with its own large closet, separated by a shared full bathroom featuring elegant fixtures and durable vinyl plank flooring. The home's centerpiece is the open-concept living space, where the kitchen, dining area, and living room merge seamlessly under 8-foot ceilings. The kitchen is complete with a center island, that has space for bar seating and beautiful surrounding cabinetry for storage. Adjacent to the kitchen is the dining space, with plenty of room for a family table, and the living area offers cozy charm with views of the backyard. The primary bedroom is tucked away at the rear for privacy and feels like a true retreat. It features a spacious bedroom, a walk-in closet, and a luxurious ensuite bath with a dual-sink vanity, shower, full size soaking tub and separate water closet. There are three additional bedrooms with one that could serve as a home office or study. Step outside to the covered patio which invites you to relax and enjoy the scenic surroundings. The Cali floorplan delivers comfort and style for modern living. Riverwalk is the perfect place to call home with its onsite amenities featuring a pool and clubhouse and a boardwalk that leads to Lafayette Creek and LaGrange Bayou. This home was the model home. Any furniture or draperies in the home do not convey. This home is sold AS/IS and the warranties on appliances will be for the time remaining of the item. There is a one year builder warranty that will start from the date of closing. Any window treatment hardware shall remain. All sales center areas will be converted back to the space as shown on the floor plan.
Related Properties
© 2026 Emerald Coast Association of Realtors MLS. All rights reserved. IDX information is provided exclusively for consumers' personal, non-commercial use and may not be used for any purpose other than to identify prospective properties consumers may be interested in purchasing. Information is deemed reliable but is not guaranteed accurate by the MLS or Hammock Bay. Vendor Member number: 28178. Data last updated: 2026-01-15T00:00:24.21.
Vendor Member #28178.
