Description
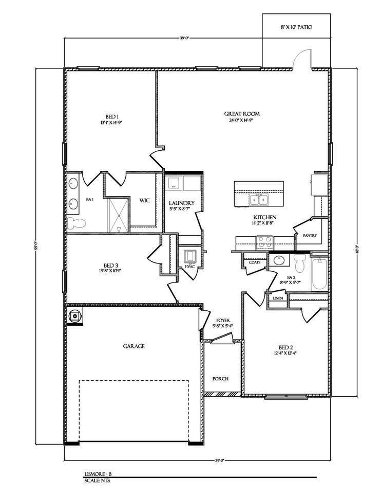
Welcome to 167 W Gray Owl Drive, a new home at Owl's Head Farms in Freeport, Florida. This home is ready for move in and features the Lismore floor plan. The foyer opens to a bright living space, with two secondary bedrooms and a full bathroom tucked off to one side. These rooms are perfectly sized for guests, children, or even a home office, with each offering plenty of closet space and easy access to the shared bath. This home featuring modern finishes and engineered Vinyl plank flooring throughout the home except for the bedrooms where you'll find plush carpet.
-
3BEDS
-
0.14ACRES
-
2BATHS
-
01/2 BATHS
-
1,580SQFT
-
$0$/SQFT
School Information
Description
Welcome to 167 W Gray Owl Drive, a new home at Owl's Head Farms in Freeport, Florida. This home is ready for move in and features the Lismore floor plan. The foyer opens to a bright living space, with two secondary bedrooms and a full bathroom tucked off to one side. These rooms are perfectly sized for guests, children, or even a home office, with each offering plenty of closet space and easy access to the shared bath. This home featuring modern finishes and engineered Vinyl plank flooring throughout the home except for the bedrooms where you'll find plush carpet.
© 2026 Emerald Coast Association of Realtors MLS. All rights reserved. IDX information is provided exclusively for consumers' personal, non-commercial use and may not be used for any purpose other than to identify prospective properties consumers may be interested in purchasing. Information is deemed reliable but is not guaranteed accurate by the MLS or Hammock Bay. Vendor Member number: 28178. Data last updated: 2026-03-08T09:00:32.463.
Vendor Member #28178.
