Description
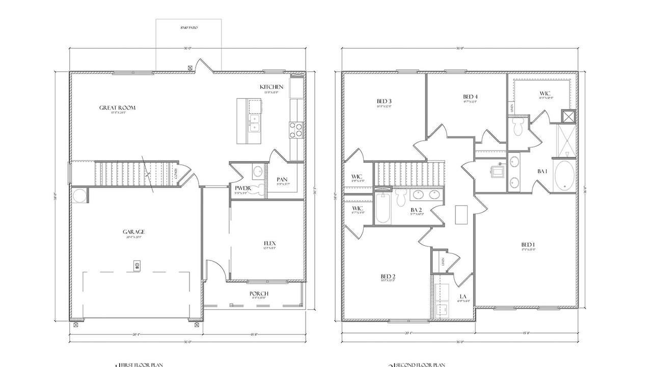
Welcome to 165 Dockside Road, a new home at Magnolia at the Bluffs in Freeport Florida. This is a two story home under construction. Approaching this home, you will notice the covered front porch offering a space for outdoor seating. Enter this home to a bright entry with large flex space just off the foyer. This room is perfect for a formal dining room or study. Continuing through the hall you will find a half bath on the main level just as you enter the great room. The main level features a grand living space that is open to the kitchen with center island, plenty of counter space with upper and lower cabinetry and a spacious corner pantry for storage. There is a back patio just off the living area that has space for dining al fresco.
-
4BEDS
-
N/AACRES
-
2BATHS
-
11/2 BATHS
-
2,200SQFT
-
$145$/SQFT
School Information
Description
Welcome to 165 Dockside Road, a new home at Magnolia at the Bluffs in Freeport Florida. This is a two story home under construction. Approaching this home, you will notice the covered front porch offering a space for outdoor seating. Enter this home to a bright entry with large flex space just off the foyer. This room is perfect for a formal dining room or study. Continuing through the hall you will find a half bath on the main level just as you enter the great room. The main level features a grand living space that is open to the kitchen with center island, plenty of counter space with upper and lower cabinetry and a spacious corner pantry for storage. There is a back patio just off the living area that has space for dining al fresco.
Related Properties
© 2026 Emerald Coast Association of Realtors MLS. All rights reserved. IDX information is provided exclusively for consumers' personal, non-commercial use and may not be used for any purpose other than to identify prospective properties consumers may be interested in purchasing. Information is deemed reliable but is not guaranteed accurate by the MLS or Hammock Bay. Vendor Member number: 28178. Data last updated: 2026-02-09T00:00:42.067.
Vendor Member #28178.
