Description
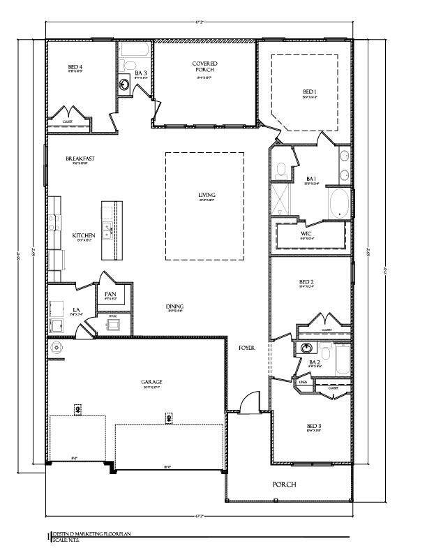
Welcome to 120 Farm Owl Drive, this new home that is ready for move in at Owl's Head Farms in Freeport Florida. As you enter this floorplan, you are immediately drawn into the expansive great room, where the open concept design showcases 9' ceilings with additional tray ceilings in the open living room. As you enter the open living space there is an appointed dining room allows for a formal dining option. The kitchen is designed with an open concept and features elegant quartz countertops with white cabinetry to complement. A tile backsplash finishes out this space along with matte black plumbing fixtures.
-
4BEDS
-
0.19ACRES
-
3BATHS
-
01/2 BATHS
-
2,377SQFT
-
$179$/SQFT
School Information
Description
Welcome to 120 Farm Owl Drive, this new home that is ready for move in at Owl's Head Farms in Freeport Florida. As you enter this floorplan, you are immediately drawn into the expansive great room, where the open concept design showcases 9' ceilings with additional tray ceilings in the open living room. As you enter the open living space there is an appointed dining room allows for a formal dining option. The kitchen is designed with an open concept and features elegant quartz countertops with white cabinetry to complement. A tile backsplash finishes out this space along with matte black plumbing fixtures.
Related Properties
© 2026 Emerald Coast Association of Realtors MLS. All rights reserved. IDX information is provided exclusively for consumers' personal, non-commercial use and may not be used for any purpose other than to identify prospective properties consumers may be interested in purchasing. Information is deemed reliable but is not guaranteed accurate by the MLS or Hammock Bay. Vendor Member number: 28178. Data last updated: 2026-05-18T14:00:38.523.
Vendor Member #28178.
