Description
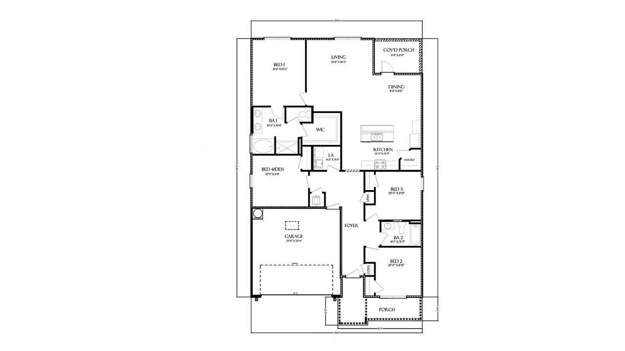
Welcome to 118 Dockside Road, This spectacular floor plan is a 4-bedroom, 2-bathroom home with a two-car garage. The Cali floor plan features a large covered front porch with space for a sitting area. As you enter this home you will find a long hallway leading to the living area. Two bedrooms are off the entry with a full bathroom in between. Across the hall is a fourth bedroom and large laundry room. The fourth bedroom is a perfect space for a den or even a home office. Continuing down the hall, you will find yourself at an open kitchen with center island, a large dining space and comfortable living area. The primary bedroom is found at the back of the home and features a large bathroom with dual sink vanity, separate shower, large soak tub and a large closet.
-
4BEDS
-
N/AACRES
-
2BATHS
-
01/2 BATHS
-
1,799SQFT
-
$184$/SQFT
School Information
Description
Welcome to 118 Dockside Road, This spectacular floor plan is a 4-bedroom, 2-bathroom home with a two-car garage. The Cali floor plan features a large covered front porch with space for a sitting area. As you enter this home you will find a long hallway leading to the living area. Two bedrooms are off the entry with a full bathroom in between. Across the hall is a fourth bedroom and large laundry room. The fourth bedroom is a perfect space for a den or even a home office. Continuing down the hall, you will find yourself at an open kitchen with center island, a large dining space and comfortable living area. The primary bedroom is found at the back of the home and features a large bathroom with dual sink vanity, separate shower, large soak tub and a large closet.
Related Properties
© 2026 Emerald Coast Association of Realtors MLS. All rights reserved. IDX information is provided exclusively for consumers' personal, non-commercial use and may not be used for any purpose other than to identify prospective properties consumers may be interested in purchasing. Information is deemed reliable but is not guaranteed accurate by the MLS or Hammock Bay. Vendor Member number: 28178. Data last updated: 2026-03-05T00:00:32.15.
Vendor Member #28178.
